Baugrundstück / Projektierung – Backnang
Lutherweg
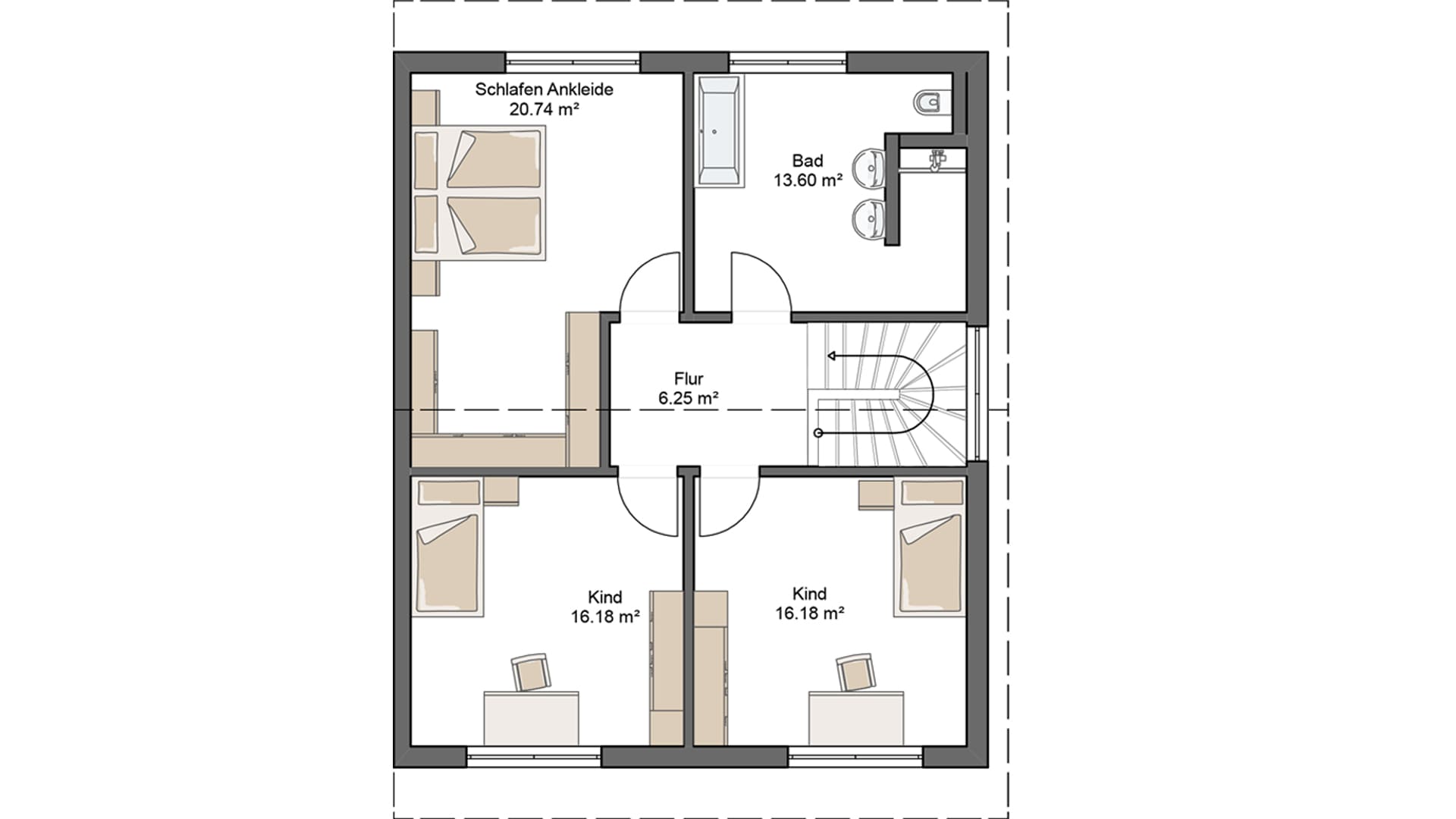
Bei der hier beschriebenen Projektierung handelt es sich um eine Doppelhaushälfte in Backnang, Lutherweg. Geplant ist das voll unterkellerte Haus mit 2 Etagen, 6 Zimmern und einer Wohnfläche von ca. 151 m². Die Grundstücksfläche beträgt ca. 570 m².
Preis: 785.400 €
Diese projektierte Doppelhaushälfte überzeugt durch eine hochwertige Ausstattung und nachhaltige Bauweise.
- Planungsleistung inklusive: Die Erstellung der Genehmigungsplanung mit detaillierten Grundrissen, Schnitten und Ansichten ist bereits im Preis enthalten.
- Keller: Solide Basis für langfristige Stabilität und Wohnkomfort.
- Ökologischer Wandaufbau (Palisol): Das Haus wird mit einer hochwertigen, diffusionsoffenen Wandkonstruktion errichtet. Die verwendete ökologische Holzfaserdämmplatte von TALBAU-Haus bietet optimalen Schutz – im Winter vor Kälte, im Sommer vor Hitze – und sorgt zugleich für exzellente Schalldämmung.
- Moderne Fenster: Hochwertige 3-fach verglaste Kunststofffenster mit anthrazitfarbener Folierung auf der Rahmenaußenseite.
- Rollläden: Fenster sind mit gedämmten Aluminium-Lamellen-Rollläden ausgestattet – für optimale Verdunkelung, Wärmeschutz und Sicherheit.
- Komfortable Badausstattung: Das Badezimmer überzeugt z. B. mit einem bodenebenen Duschplatz, der ein modernes Design mit hoher Funktionalität vereint.
- Flexible Innenraumgestaltung: Die Malerarbeiten und Bodenbeläge sind nicht im Preis enthalten, sodass Sie Ihren Wohnstil individuell gestalten können.
Die Fliesen im WC und Bad sind in dem hier ausgewiesenen Preis bereits inklusive. Im Rahmen unserer Bemusterung können Sie hier aus einem breiten Repertoire wählen. - Photovoltaikanlage: Das Haus erhält eine Photovoltaikanlage mit einer Leistung von ca. 8 kWp. Die Installation der Module erfolgt in Aufdachmontage.
Dieses Haus bietet eine energieeffiziente, stilvolle und zukunftssichere Wohnlösung – perfekt für Familien oder Paare, die auf Qualität und Nachhaltigkeit setzen.
Auf Wunsch errichten wir das Haus auch in Energieeffizienzhausklasse 40. Der Grundriss kann auf Wunsch ebenso noch individuell angepasst werden. Durch diese Anpassungen können Mehrpreise entstehen.
Backnang ist eine charmante Stadt im Rems-Murr-Kreis in Baden-Württemberg, etwa 30 Kilometer nordöstlich von Stuttgart. Eingebettet zwischen den sanften Hügeln des Schwäbischen Waldes und dem Flusslauf der Murr, bietet der Ort eine idyllische Landschaft, die zu vielfältigen Outdoor-Aktivitäten wie Wandern und Radfahren einlädt.
Verkehrstechnisch ist Backnang hervorragend angebunden. Die Nähe zur Bundesstraße B14 und zur Autobahn A81 ermöglicht eine schnelle Erreichbarkeit der umliegenden Städte und Regionen.
Die Stadt verfügt über mehrere Kindertageseinrichtungen, die unterschiedliche Betreuungsformen anbieten. In Backnang finden Sie eine perfekte Kombination aus naturnaher Lage, guter Infrastruktur und hoher Lebensqualität.
Noch nicht im Kaufpreis enthalten sind die sogenannten Baunebenkosten. Hier darunter fallen zum Beispiel die Kosten für Erdarbeiten, Genehmigungsgebühren, Notargebühren, Grunderwerbsteuer, Gebühren für Katastereintragung, Außenanlagen, Zuwege und Stellplätze, Garage sowie die Anschlusskosten für Strom, Wasser, Abwasser, Telekommunikation und ggf. weitere Versorgungsleitungen.
Der Bauplatzpreis (€ 520,- / m²) ist im Gesamtpreis enthalten.
